Fertighaus auf weitläufigen Grundstück komplett sanierungsbedürftig - attraktive Lage

Lage: 69151 Neckargemünd / Dilsberg | Baden-Württemberg
25-MRVH-426
Wohnen EG
Essen EG
Küche EG
Zimmer EG
Bad EG
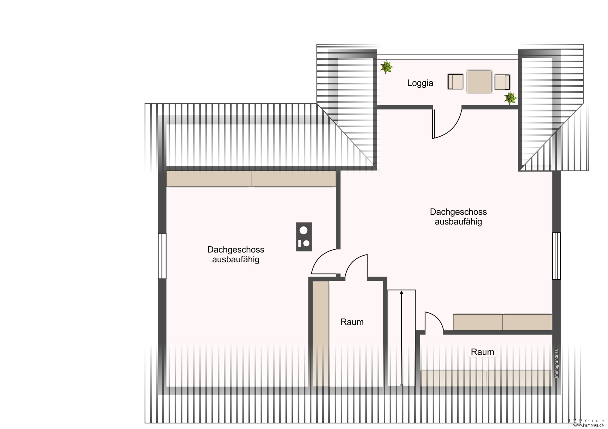
Zimmer DG
Zimmer DG
Wohnen UG
Balkon DG
Garten
Außenansicht

Beschreibung

In idyllischer Lage von Neckargemünd / Dilsberg präsentiert sich dieses Einfamilienhaus mit Einliegerwohnung, das 1978 in Fertigbauweise der NH Nordhaus Oswald Lux GmbH errichtet wurde. Das eineinhalbgeschossige Wohnhaus in Holzständerbauweise (EG und DG) steht auf einem großzügigen Grundstück von 1.365 m² und bietet enormes Potenzial für Käufer, die ein Objekt nach eigenen Vorstellungen gestalten möchten. Das Haus ist voll unterkellert (Massivbauweise) und verfügt über rd. 169 m² Wohnfläche inklusive der Einliegerwohnung mit rd. 40 m².

Die Hauptwohnung umfasst 3 Zimmer, darunter 2 Schlafzimmer, sowie 1 Badezimmer mit Tageslicht, Badewanne und Doppelwaschbecken. Ein großzügiger Wohnbereich mit Kaminofen (Stückholz) sorgt für eine angenehme Wohnatmosphäre. Von hier aus besteht Zugang zu Terrasse, Balkon und dem weitläufigen Garten. Das Dachgeschoss ist ausbaufähig, jedoch sanierungsbedürftig und bietet weiteres Entwicklungspotenzial (rd. 70 m 2 Nutzfläche).

Die Einliegerwohnung befindet sich im Rohbauzustand und verfügt über einen Wohn- und Schlafraum mit Küchenbereich, ein Badezimmer sowie einen Abstellraum. 2022 wurden hier Kunststofffenster mit Isolierverglasung eingebaut. Im übrigen Wohnhaus befinden sich noch die originalen Holzfenster von 1978.

Technisch ist das Objekt mit einer Pellet-Zentralheizung aus 2022 (bisher nicht in Betrieb genommen) sowie einer Photovoltaikanlage ausgestattet. Eine Garage ist vorhanden, jedoch nicht fertiggestellt.

Die Immobilie steht leer, ist vollumfänglich sanierungsbedürftig und wird im nicht geräumten Zustand übergeben. Aufgrund der einfachen Ausstattungsqualität und des hohen Modernisierungsbedarfs eignet sich dieses Objekt besonders für Käufer, die viel Gestaltungsspielraum suchen.

Die ruhige, naturnahe Wohnlage im historischen Ortsteil Dilsberg macht dieses Angebot ideal für Menschen, die großzügigen Raum, Naturverbundenheit und Entwicklungsmöglichkeiten schätzen:https://immotas.de/de/immobilie/fertighaus-auf-weitlaeufigen-grundstueck-komplett-sanierungsbeduerftig-attraktive-lage-1c3d98bf

Lage und Verkehrsanbindung

Die Immobilie befindet sich in Neckargemünd-Dilsberg und bietet eine hervorragende Wohnlage, die Ruhe und Naturverbundenheit mit einer guten Anbindung sowie familienfreundlicher Infrastruktur verbindet.

Der Ortsteil Dilsberg der Stadt Neckargemünd liegt auf einem Höhenrücken oberhalb des Neckartals und zeichnet sich durch eine naturnahe, nahezu dörfliche Wohnlage aus – ideal für Familien und Paare, die sowohl Erholung als auch Alltagstauglichkeit suchen.

Für die frühe Betreuung von Kindern ist mit dem katholischen Kindergarten St. Angela in Dilsberg eine Einrichtung vorhanden, die Betreuung ab Kleinkindalter bietet.
Für Grundschulkinder steht die Grundschule Dilsberg‑Mückenloch zur Verfügung, die im Ortsteil eng angebunden ist und verlässliche Betreuung bietet.
Weiterführende Schulen (Realschule, Gymnasium) befinden sich in der Kernstadt von Neckargemünd und sind mit ÖPNV bzw. kurzer Fahrzeit erreichbar, sodass auch ältere Kinder bestens aufgehoben sind.

Die Verkehrsanbindung ist mehr als solide: Die Bus-Linien im Verkehrsverbund Rhein-Neckar (z. B. Linien 752, 753) fahren von Dilsberg über Neckargemünd bis nach Heidelberg. Zudem ist der Ortsteil durch seine Lage oberhalb des Neckartals gut an die Hauptverkehrswege angeschlossen – Pendeln oder Verbindungen in die umliegenden Städte sind gut machbar.

Auch wenn der charmante Höhenort eher naturnahe Kreislage hat, existieren im Ort und in der näheren Umgebung Geschäfte des täglichen Bedarfs, kleinere Dienstleister und Handwerksbetriebe, die den Alltag bequem gestalten. Für umfangreiche Einkäufe oder größere Sortimente ist das nahe gelegene Zentrum von Neckargemünd schnell erreichbar.

Die Freizeitmöglichkeiten sind vielfältig: Die Lage in Dilsberg bietet unmittelbaren Zugang zu Wald, Naturwegen und der Höhenlage mit Aussicht über das Neckartal – perfekt für Spaziergänge, Jogging- oder Fahrradrunden. Nicht weit entfernt befindet sich die bekannte Burgfeste Dilsberg mit ihrer historischen Substanz, die als Ausflugsziel und Erholungsort dient. Vereinsleben, regionale Kultur- und Freizeitangebote runden das Bild ab und machen die Wohnlage lebendig und interessant.

Für einen Käufer präsentiert sich die Immobilie als äußerst attraktive Kombination: ruhiges und naturnahes Wohnen in einer begehrten Höhenlage, Betreuungseinrichtungen und Grundschule in direkter Nähe, gute Verkehrsanbindung in die Metropolregion Rhein-Neckar sowie Freizeit- und Erholungsräume vor der Haustür. Wer Wert auf qualitatives Familienwohnen legt, findet hier ein ausgeglichenes Umfeld mit hoher Lebensqualität.

Kaufpreis:
309.000,00 €
Provision:
3,57 % inkl. MwSt. %

Lagepläne

Plan 0

Fakten

Objektnummer:
RP-25-MRVH-426
Objekttyp:
Haus
Wohnfläche:
169 m²
Nutzfläche:
110 m²
Grundstücksfläche:
1.365 m²
Zimmer:
4
Schlafzimmer:
3
Badezimmer:
2
Baujahr:
1978
Zustand:
Sanierungsbedürftig
Verfügbarkeit:
Verfügbar

Preisdetails

Kaufpreis:
309.000,00 €
Provision:
3,57 % inkl. MwSt. %

Energieeffizienz

Endenergiebedarf:
215.80 kWh/(m²*a)
Energieeffizienzklasse:
G
Wesentliche Energieträger:
Holz
Baujahr laut Energieausweis:
1978
Ausstellung:
ab dem 1.5.2014
Energieausweisart:
Energiebedarfsausweis
Gültig bis:
26.11.2035

Ansprechpartner

Vincent  Haber
Anfrage
Max. 500 Zeichen
Ich habe die Datenschutzvereinbarung gelesen und verstanden, und ich stimme der Verarbeitung meiner persönlichen Daten wie darin beschrieben zu. *