Kleines und gemütliches Reihenmittelhaus mit Potenzial - kein Garten oder Außenbereich

Lage: 67475 Weidenthal | Rheinland-Pfalz
25-CPBD-268
Küche EG
Wohnen EG
Essen EG
Schlafen DG
Zimmer DG
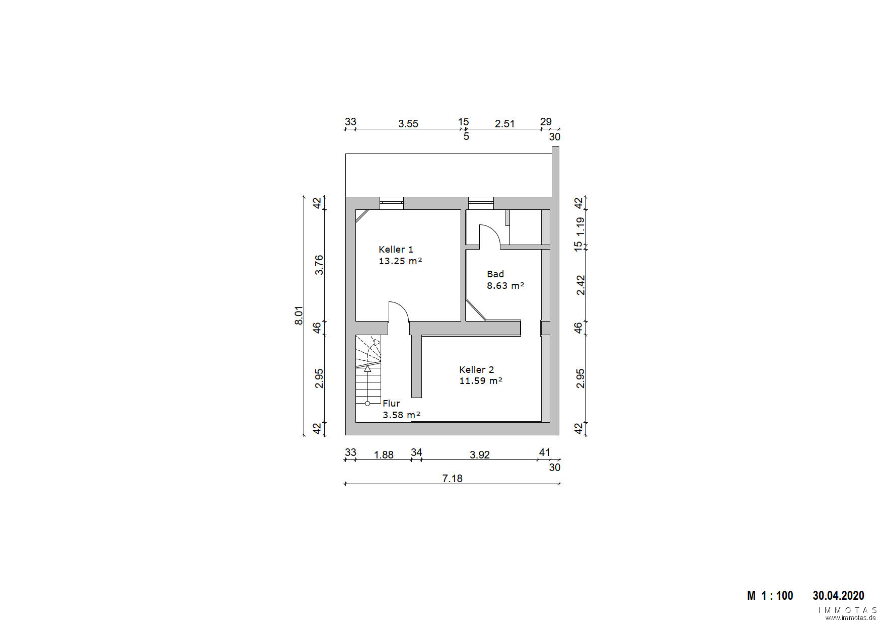
Bad KG
WC KG
Balkon

Beschreibung

In ruhiger Lage von Weidenthal, eingebettet in die reizvolle Landschaft des Pfälzerwalds, befindet sich dieses charmante Reihenmittelhaus aus dem Jahr ca. 1925. Das eineinhalbgeschossige Einfamilienhaus in Massivbauweise wurde in den vergangenen Jahren in zentralen Bereichen modernisiert und bietet mit rund 78 m² Wohnfläche auf einem kompakten Grundstück von 69 m² eine ideale Basis für Singles, Paare oder Kapitalanleger, die eine bezahlbare Immobilie mit Substanz und Potenzial suchen.

Das Haus ist vollständig unterkellert, das Dachgeschoss ist zu Wohnzwecken ausgebaut. In den Jahren 2020 und 2021 erfolgten durch Fachfirmen umfassende Modernisierungsarbeiten: Die Elektrik wurde komplett erneuert, ein neuer Stromanschluss mit 3×63 Ampere Leistung durch die Stadtwerke Kaiserslautern installiert. Zudem wurden eine neue Gastherme mit neuen Heizkörpern eingebaut, ebenso eine Infrarotheizung in einem der Kellerräume installiert. Die Haustür sowie die Küche inklusive Bodenbelag wurden ebenfalls erneuert, ebenso der Boden im Dachgeschoss. Warmwasseranschlüsse wurden modernisiert.

Bereits im Jahr 2010 wurde das Dach neu eingedeckt, 2015 erfolgte der Einbau von neuen Fenstern.

Das Haus verfügt über kein Gartengrundstück oder Außenbereich, was es besonders pflegeleicht macht. Das Duschbad im Kellergeschoss befindet sich in renovierungsbedürftigem Zustand und bietet Raum für individuelle Gestaltung. Darüber hinaus sind kleinere Schönheitsreparaturen möglich, um die Immobilie weiter an persönliche Ansprüche anzupassen.

Die Lage in der Weißenbachstraße zeichnet sich durch ihre Ruhe und Nähe zur Natur aus. Gleichzeitig bestehen gute Anbindungen an die umliegenden Städte wie Kaiserslautern oder Neustadt an der Weinstraße – ideal für Pendler oder als Wochenenddomizil.

Dieses Haus verbindet historische Bausubstanz mit bereits erfolgten, kostenintensiven Modernisierungen und bietet damit eine hervorragende Grundlage für Wohnen mit Charakter – ob zur Eigennutzung oder als clevere Investition in eine wachstumsstarke Ferienregion:https://immotas.de/de/immobilie/kleines-und-gemuetliches-reihenmittelhaus-mit-potenzial-kein-garten-oder-aussenbereich-e8d633e1

Lage und Verkehrsanbindung

Die Weißenbachstraße 50 befindet sich in einer ruhigen Anliegerstraße in Weidenthal, eingebettet im Tal des Hochspeyerbachs und umgeben von den bewaldeten Hügeln des Pfälzerwaldes. Die Lage vereint naturnahe Ruhe mit praktischer Erreichbarkeit: In rund 800 m Entfernung liegt der Bahnhof Weidenthal, von dem aus die S-Bahn Rhein‑Neckar verkehrt und direkte Verbindungen nach Mannheim, Ludwigshafen, Heidelberg und Kaiserslautern bietet. Kaiserslautern ist nur ca. 20 km entfernt (rund 20 Minuten mit dem Auto oder der S-Bahn), Neustadt an der Weinstraße erreicht man in ca. 25 km (30 Minuten mit dem Auto), Ludwigshafen und Mannheim liegen rund 55 km entfernt (etwa 45–50 Minuten mit der S-Bahn),

Ein aktuelles Highlight ist die neue Brücke über die Bahnlinie, die die vormals meist lange geschlossene Schranke ersetzt und so die Verbindung zur Bundesstraße 39 deutlich verbessert. Das entlastet Anwohner und steigert die Lebensqualität erheblich.

Die Freizeitmöglichkeiten sind vielfältig: Der Pfälzerwald mit seinen Wander‑ und Mountainbikewegen liegt direkt vor der Haustür. Ein kleiner Naturbadeweiher inklusive Minigolfanlage, Liegewiese und Kiosk lädt zur Erholung ein – typisch für die Umgebung rund um Weidenthal. Außerdem bereichern lokale Sportanlagen und Vereine (Fußball, Tennis, Turnen, Schützen) sowie regelmäßige Dorfveranstaltungen das Gemeinschaftsleben.

Insgesamt bietet die Adresse Weißenbachstraße 50 eine perfekte Kombination aus ruhigem Wohnen im Grünen, guter Anbindung über Bahn und Straße sowie einem aktiven, naturnahen Dorfleben – passend für Menschen, die Erholung, Infrastruktur und Gemeinschaft gleichermaßen schätzen.

Kaufpreis:
79.000,00 €
Provision:
3,57 % inkl. MwSt. %

Lagepläne

Plan 0

Fakten

Objektnummer:
25-CPBD-268 — Reserviert
Objekttyp:
Haus
Wohnfläche:
78 m²
Nutzfläche:
38,91 m²
Grundstücksfläche:
69 m²
Zimmer:
4
Schlafzimmer:
2
Badezimmer:
1
Baujahr:
1925
Verfügbarkeit:
Reserviert

Preisdetails

Kaufpreis:
79.000,00 €
Provision:
3,57 % inkl. MwSt. %

Energieeffizienz

Endenergiebedarf:
106.90 kWh/(m²*a)
Energieeffizienzklasse:
D
Wesentliche Energieträger:
Gas
Baujahr laut Energieausweis:
1925
Ausstellung:
ab dem 1.5.2014
Energieausweisart:
Energiebedarfsausweis
Gültig bis:
23.01.2031

Ansprechpartner

Brandon  Dominguez

Brandon Dominguez

Anfrage
Max. 500 Zeichen
Ich habe die Datenschutzvereinbarung gelesen und verstanden, und ich stimme der Verarbeitung meiner persönlichen Daten wie darin beschrieben zu. *